Projekte
B A I E R L & D E M M E L H U B E R
A H R E N S B U R G
Fa. Baierl & Demmelhuber Innenausbau GmbH
Neubau Niederlassung Ahrensburg bei Hamburg
Neubau eines Büro- und Hallengebäudes
Beauftragung: Leistungsphasen (HOAI ) 1-4
Planungszeit: 2020 – 2021
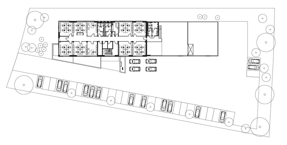
Im Rahmen einer Grundstücksausschreibung an der Carl-Backhaus-Straße, im Gewerbegebiet Ahrensburg Beimoor Süd II, haben wir ein dreigeschossiges Verwaltungsgebäude mit angeschlossener Kalt- / Warmhalle für die Fa. Baierl & Demmelhuber Innenausbau GmbH entworfen. Der Zuschlag für das favorisierte Grundstück wurde im 3. Quartal 2020 erteilt. In Anlehnung an die kürzlich errichtete Firmenzentrale, in Töging bei München, entwickelten wir gemeinsam mit unseren Bauherren eine zweihüftige Bürostruktur. Die Materialität und das Design der Innenwände, sowie die Gebäudetechnik, unter anderem mit Kühl-Heizkassetten in den Deckensegeln, erfüllen höchste Ansprüche im Bereich Innenausbau.




Das Gebäude ist in Betonskelettbauweise konzipiert. Die Verblendfassade wird mit Wittmunder Klinkern, in einem rot-grau bunten Spektrum, ausgeführt . Die Verblendbasis des Erdgeschosses zeigt sich in einem dunkelgrau, schwarzen Klinkerkleid und setzt sich so farblich ab. Das dunkle Farbschema wird im Hallenteil fortgeführt, um die beiden Gebäudeelemente auch visuell zu verbinden. Mit Hilfe von vorgefertigten Betonrahmen werden die Fenster optisch gefasst, der notwendige Sonnenschutz wird mittels elektrisch betriebener Holzschiebeläden gewährleistet.
Einen besseren Eindruck zum Leistungsspektrum der Fa. Baierl & Demmelhuber, einen führenden Spezialisten im Bereich des hochqualitativen Innausbaus, erhalten Sie unter
www. demmelhuber .de





